360° Signature

Refuge

Deltec Backyard Cottage logo
Floor plan 21-A on a slab foundation with factory-installed engineered wood siding.

Quick Facts

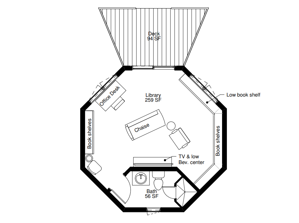
Floor Plan Inspirations

Live

Work

Play

21-A Unique Features

21-A Unique Features

Pricing & Options​

Your 360° Signature Refuge

$24,900 $19,920
save 20% until 2/27
326 square feet | 21' diameter
Base price for similar custom home from the Design Studio is $37,423.
WEST COAST LAUNCH SAVINGS
$15,900 off all Signature models
Your Build Location
DELTEC SPRING SALE!
Foundation upgrades: 50% off prices shown
(up to total savings of $20,000)
Your Foundation Type
DELTEC SPRING SALE!
Foundation upgrades: 50% off prices shown
(up to total savings of $20,000)
Hidden
Add a Garage
DELTEC SPRING SALE!
Options: 50% off prices shown
(up to total savings of $20,000)
Refuge Options
DELTEC SPRING SALE!
Hurricane/High-Wind Packages: 50% off prices shown
(up to total savings of $20,000)
Hidden
High-wind Upgrades
Total Shell Price
$24,900

Estimated Total Cost to Build, Starting at$110,020

Based on national averages for lower 48 US states. Includes base shell price and building cost of options as selected above. Does not include the cost of land. Learn more

Backyard Cottages are currently available in most locations in the United States. Building in other international locations require custom services in the 360° Design Studio.

1 Base shell price includes Deltec's Energy Wall, self-supporting roof system, factory-installed windows, factory-installed wood composite siding and bid-ready construction drawings.

2 Total shell price does not include freight, sales tax, or shell assembly (where applicable). Contact your sales representative for a quote including these items.

This field is for validation purposes and should be left unchanged.

Download or share this floor plan

Download as many as you like, no email required.

Learn More about our new 360° Signature Collection