800.642.2508
Why Round?
Our Homes
360° Signature
360° Design Studio
Compare Paths
How It Works
Learn More
Green Building
Hurricane Ready
Building in Western NC
Events and Webinars
Model Homes
Virtual Tours
About Us
Builders
Commercial Applications
Press
Contact
Blog
Connect with Us
Offers
Backyard Cottages
Spring Options Sale
Hometown Heroes
Why Round?
Our Homes
360° Signature
360° Design Studio
Compare Paths
How It Works
Learn More
Green Building
Hurricane Ready
Building in Western NC
Events and Webinars
Model Homes
Virtual Tours
About Us
Builders
Commercial
Press
Contact
Offers
Backyard Cottages
Spring Options Sale
Hometown Heroes
Blog
Connect with Us
800.642.2508
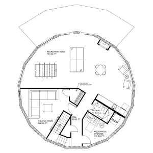
Lower Level